Arana 1286, Funes
1100
2 Hab.
Con Cochera
2 Baños
Ambientes: 5
Orientación: NORTE
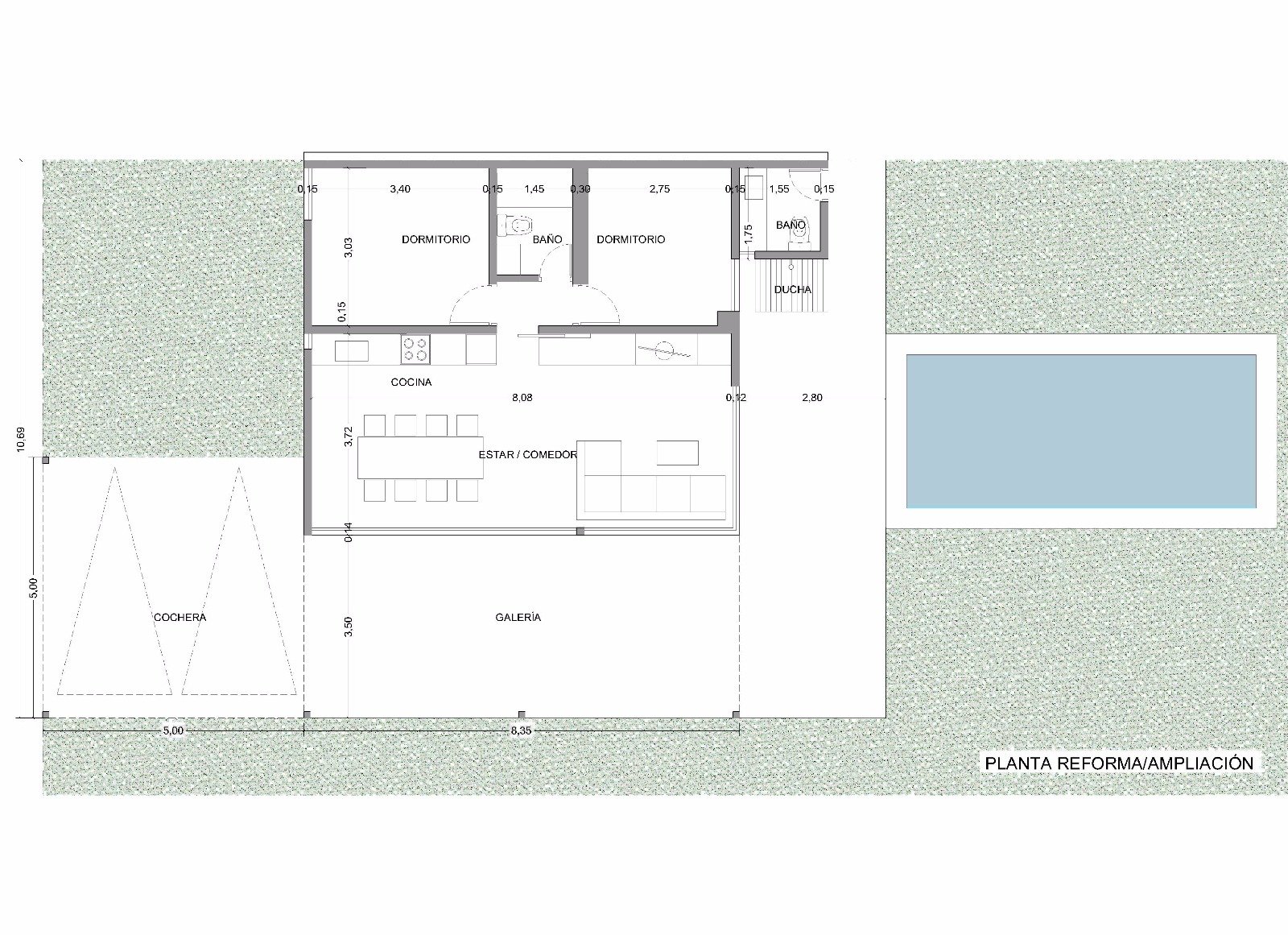
Superficie cubierta: 150
En alquiler hermosa casa de diseño ubicada en la calle Arana 1286, Funes (Loteo los Indios, cercano a Funes Town). Acceso por asfalto (solo 2 cuadras y 1/2 de tierra consolidada en excelente estado). Ver ubicación en el mapa.
La casa se encuentra desarrollada en una planta y dentro de un predio de 1.100M2 con una excelente parquización y espectacular arboleda.
Casa de dos dormitorios, dos baños, cocina comedor y living integrado, galería semicerrada de usos multiples, solarium, piscina Tessel, enorme quincho con parrillero y cuarto de guardado equipado. Pisos de cemento alisado, paredes enduidas en yeso, aberturas de aluminio con amplios ventanales y cortinas roller.
Equipadísima: Una cama matrimonial y una cucheta triple, placard en dormitorio ppal, vajilla, gas natural, anafe y horno a gas, heladera, microondas, estufa tiro balanceado, calefón, aire AA F/C, wifi y alarma. Agua por perforación con bomba sumergible y automático de tanque. Juegos para niños: mesa de ping pong, cama elástica, amaca colgante, amaca paraguaya y casita de juegos. Cerco verde perimetral y medianera de manpostería sobre lindero al norte.
Zona madura y urbanizada hace + de 50 años, con varios linderos con vivienda permanente.
NO SE ALQUILA PARA FIESTAS NI EVENTOS, ESTADIA MINIMA SEMANA, PRECIO PUBLICADO POR DIA
CI Javier Pegoraro - MAT 1321
Cel 341 5 523497